A Residência Porto Madero localiza-se na porção sul da cidade. Uma esquina com 17,05mx23,00m; 2,60m de declive e a maior testada com vista para uma Área de Preservação Permanente — APP.
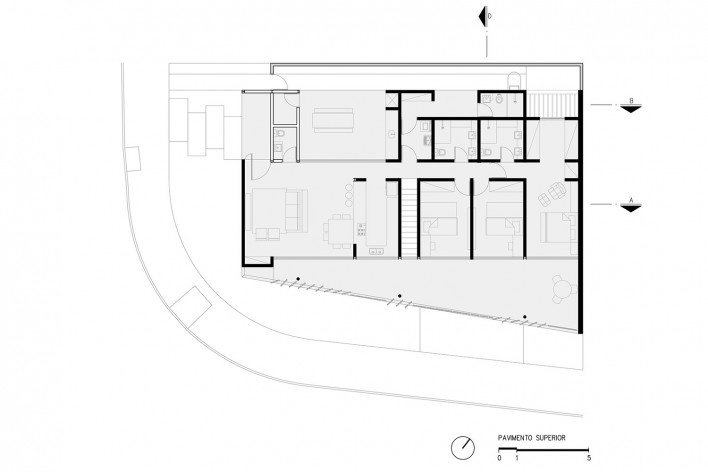
Com essa morfologia, o projeto foi implantado em dois níveis — um na cota mais baixa com entrada pela via de maior testada onde ficam a garagem, depósito, um quarto de hóspede e escritório; e outro com acesso pelo nível de menor testada, onde fica o programa da casa: três dormitórios, estar, jantar, varandas e serviço.

Residência Porto Madero, diagrama, Presidente Prudente SP Brasil, 2022. Arquiteta Cristiana Pasquini / grupoDEArquitetura
Imagem divulgação [grupoDEArquitetura]
Com organização linear, todos os ambientes se abrem para a vista da mata que, além de uma generosa varanda para conter o sol da manhã, também foram instalados brises para conter o sol da tarde.
Um belo pôr do sol abraça a casa todos os dias — no inverno ele se deita bem de frente à varanda e aquece a casa; no verão em decorrência da sua inclinação ele se põe atrás da grande parede de divisa. Uma varanda sombreada no verão e no inverno um brise que controla a insolação sem que se perca a vista da área de preservação.

Residência Porto Madero, Presidente Prudente SP Brasil, 2022. Arquiteta Cristiana Pasquini / grupoDEArquitetura
Foto Pedro Kok
Com todos os ambientes da casa saindo para a varanda, a casa também possui ventilação cruzada feita por pequenas aberturas na coberta.
A estrutura é mista de concreto aparente e aço.
No trabalho à compressão o concreto, todo o nível inferior foi feito em concreto armado que resolveu arrimo e pilares de base.
O pavimento acima foi um bloco de estrutura metálica, deixando a construção mais leve e com montagem e execução bem mais rápidas.
Todos os acabamentos são em concreto aparente, as lajes e o piso — um teto jardim devolve todo o terreno para a vista de fim de tarde.

Residência Porto Madero, Presidente Prudente SP Brasil, 2022. Arquiteta Cristiana Pasquini / grupoDEArquitetura
Foto Pedro Kok
ficha técnica
projeto
Residência Porto Madero
local
Presidente Prudente SP Brasil
ano
Projeto: 2019
Obra: 2022
arquitetura
Arquiteta Cristiana Pasquini (autora); Leandro Mendes e Thamires Garcia (equipe) / grupoDEArquitetura
estrutura metálica
Pruden Art
foto
Pedro Kok














![Residência Porto Madero, implantação, Presidente Prudente SP Brasil, 2022. Arquiteta Cristiana Pasquini / grupoDEArquitetura<br />Imagem divulgação [grupoDEArquitetura]](https://vitruvius.com.br/media/images/magazines/grid_12/8100f5cd0c82_grupodearquitetura_madero15.jpg)
![Residência Porto Madero, planta pavimento inferior, Presidente Prudente SP Brasil, 2022. Arquiteta Cristiana Pasquini / grupoDEArquitetura<br />Imagem divulgação [grupoDEArquitetura]](https://vitruvius.com.br/media/images/magazines/grid_12/c2dd14e8c603_grupodearquitetura_madero16.jpg)
![Residência Porto Madero, planta pavimento superior, Presidente Prudente SP Brasil, 2022. Arquiteta Cristiana Pasquini / grupoDEArquitetura<br />Imagem divulgação [grupoDEArquitetura]](https://vitruvius.com.br/media/images/magazines/grid_12/29a9c7f91bde_grupodearquitetura_madero17.jpg)
![Residência Porto Madero, planta cobertura, Presidente Prudente SP Brasil, 2022. Arquiteta Cristiana Pasquini / grupoDEArquitetura<br />Imagem divulgação [grupoDEArquitetura]](https://vitruvius.com.br/media/images/magazines/grid_12/d56d76f3f661_grupodearquitetura_madero18.jpg)
![Residência Porto Madero, elevação 01, Presidente Prudente SP Brasil, 2022. Arquiteta Cristiana Pasquini / grupoDEArquitetura<br />Imagem divulgação [grupoDEArquitetura]](https://vitruvius.com.br/media/images/magazines/grid_12/622c46f7a854_grupodearquitetura_madero19.jpg)
![Residência Porto Madero, elevação 02, Presidente Prudente SP Brasil, 2022. Arquiteta Cristiana Pasquini / grupoDEArquitetura<br />Imagem divulgação [grupoDEArquitetura]](https://vitruvius.com.br/media/images/magazines/grid_12/022140202d10_grupodearquitetura_madero20.jpg)
![Residência Porto Madero, corte AA, Presidente Prudente SP Brasil, 2022. Arquiteta Cristiana Pasquini / grupoDEArquitetura<br />Imagem divulgação [grupoDEArquitetura]](https://vitruvius.com.br/media/images/magazines/grid_12/57d2fe3341d3_grupodearquitetura_madero21.jpg)
![Residência Porto Madero, corte BB, Presidente Prudente SP Brasil, 2022. Arquiteta Cristiana Pasquini / grupoDEArquitetura<br />Imagem divulgação [grupoDEArquitetura]](https://vitruvius.com.br/media/images/magazines/grid_12/b72dde7c1c17_grupodearquitetura_madero22.jpg)
![Residência Porto Madero, corte DD, Presidente Prudente SP Brasil, 2022. Arquiteta Cristiana Pasquini / grupoDEArquitetura<br />Imagem divulgação [grupoDEArquitetura]](https://vitruvius.com.br/media/images/magazines/grid_12/9442cede8459_grupodearquitetura_madero23.jpg)
